Architectural Drawing Set

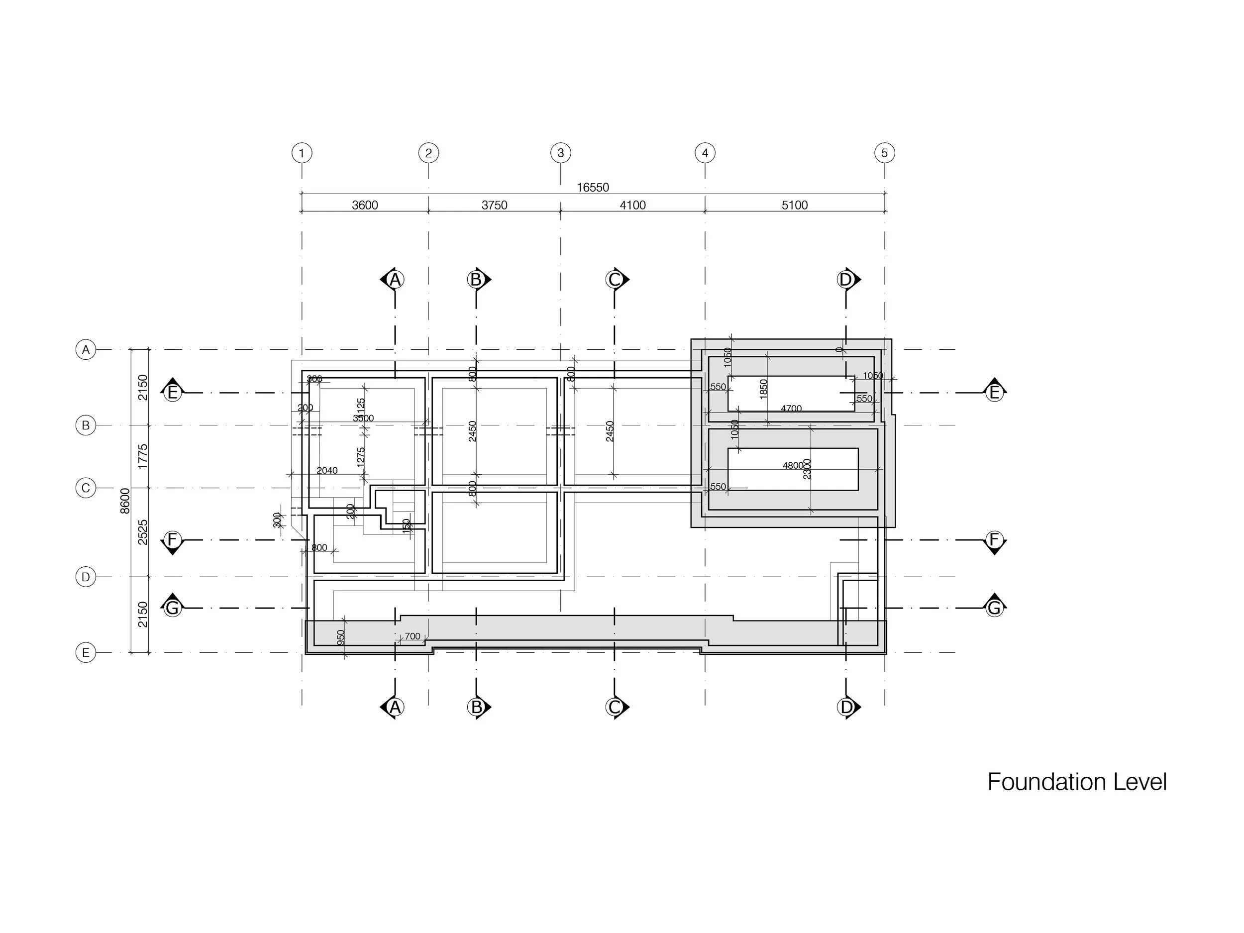
A complete architectural drawing set is necessary for building submission and plays a critical role in the success of any project. It provides accurate, code-compliant documentation that guides construction and supports faster approvals.
These sets include essential components such as floor plans, elevations, sections, electrical layouts, and plumbing plans — all clearly detailed to ensure smooth coordination on site.
Precise drawings help avoid costly errors and promote sustainable practices by reducing waste and improving efficiency. They are the foundation of a well-executed, long-lasting build.

Next
Next

Architectural Set